Pécs, Szilágyi Dezső utca
Referencia szám: PH22184
Részletek
Ingatlan állapotaúj építésű
Berendezésbútorozatlan
Épülettípustégla
Fűtéscirkó
Ingatlantípuslakás
Tájoláskelet-nyugat
Kilátáspanorámás
Szobaszám3
Emelet2
Szintek száma3
Parkolásfedett gépkocsibeálló
Szigetelésigen
Épült2026
Alapterület52m2
Költözhetőség2026-09-01
Irányár75.9 M Ft
Leírás
Pécs-Belváros peremén, csendes, családi házas övezetben, kiváló referencia munkáiról ismert, és nagy szakmai tapasztalattal rendelkező generálkivitelező által 2025. télen kezdődő beruházás keretében szigetelt, kettő épületből álló, háromszintes, összesen 4 db lakásból és 4db gépkocsi beállókból álló, modern, téglaépítésű társasházban, exclusive kivitelezésű, korszerű felszereltséggel, valamint magas műszaki tartalommal bíró, kulcsrakész új építésű "A" besorolású lakások 2026. őszi átadással már leköthetők.
Az ingatlanok fűtését, hűtését lakásonként szerelt saját gázkazán biztosítja, illetve kültéri egységgel rendelkező klíma. Minden lakás padlófűtéses, a nappaliban és hálószobában külön szabályozható a fűtés. A fürdőszobában ezen felül elektromos fali radiátor biztosítja a meleget. Motoros redőnyökkel felszerelt 3 rétegű üvegezésű, világosszürke alumínium nyílászárók kerülnek beszerelésre. A 40cm falazatra még 15cm szigetelés fog kerülni.
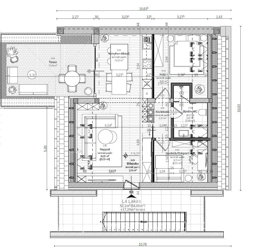
Ezen ingatlan a tetőtérben található (a tervrajzon L4 számú lakásként jelölve), összesen 52,1 m2 (bruttó 64,66 m2) alapterületű lakótérrel + 17,24 m2 panorámás nyugati tájolású terasszal rendelkezik. A lakótérben egy kényelmes konyha-étkező-nappal, egy hálószoba, egy gardróbszoba vagy dolgozó helyiség, és egy fürdőszoba + WC került kialakításra.
A lakáshoz belső udvari fedett 10 nm gépkocsibeálló és 4,11 nm tároló is vásárolható. Minden gépkocsibeállóhoz elektromos autótöltő került kiépítésre.
Mivel az ingatlant is magába foglaló társasház a város külföldi egyetemisták által is preferált részén található, ezért fokozottan ajánljuk mindazon kedves érdeklődők figyelmébe, akik Pécsett kifejezetten befektetési célból kívánnak ingatlant vásárolni. A város jelenleg legnagyobb albérlet kínálatával rendelkező és a Pécsi Tudományegyetem egyetlen szerződött ingatlanközvetítő cégként a vásárlást követően - igény esetén - hathatósan tudjuk segíteni a vevőt az ingatlan albérlet útján történő hasznosításában is.
Figyelem! Az ár nettó, 5% áfa terheli.
VisszaAz ingatlanok fűtését, hűtését lakásonként szerelt saját gázkazán biztosítja, illetve kültéri egységgel rendelkező klíma. Minden lakás padlófűtéses, a nappaliban és hálószobában külön szabályozható a fűtés. A fürdőszobában ezen felül elektromos fali radiátor biztosítja a meleget. Motoros redőnyökkel felszerelt 3 rétegű üvegezésű, világosszürke alumínium nyílászárók kerülnek beszerelésre. A 40cm falazatra még 15cm szigetelés fog kerülni.
Ezen ingatlan a tetőtérben található (a tervrajzon L4 számú lakásként jelölve), összesen 52,1 m2 (bruttó 64,66 m2) alapterületű lakótérrel + 17,24 m2 panorámás nyugati tájolású terasszal rendelkezik. A lakótérben egy kényelmes konyha-étkező-nappal, egy hálószoba, egy gardróbszoba vagy dolgozó helyiség, és egy fürdőszoba + WC került kialakításra.
A lakáshoz belső udvari fedett 10 nm gépkocsibeálló és 4,11 nm tároló is vásárolható. Minden gépkocsibeállóhoz elektromos autótöltő került kiépítésre.
Mivel az ingatlant is magába foglaló társasház a város külföldi egyetemisták által is preferált részén található, ezért fokozottan ajánljuk mindazon kedves érdeklődők figyelmébe, akik Pécsett kifejezetten befektetési célból kívánnak ingatlant vásárolni. A város jelenleg legnagyobb albérlet kínálatával rendelkező és a Pécsi Tudományegyetem egyetlen szerződött ingatlanközvetítő cégként a vásárlást követően - igény esetén - hathatósan tudjuk segíteni a vevőt az ingatlan albérlet útján történő hasznosításában is.
Figyelem! Az ár nettó, 5% áfa terheli.
Kapcsolattartó adatai
Kapcsolatfelvétel






