Pécs, Farkas István utca
Referencia szám: PH21731
Részletek
Ingatlan állapotaúj építésű
Berendezésbútorozatlan
Épülettípustégla
Fűtéshőszivattyú
Ingatlantípuslakás
TájolásNyugat
Kilátáskert
Szobaszám1
Emelet1
Szintek száma3
Parkolásteremgarázs
Szigetelésigen
Épült2025
Alapterület37m2
Költözhetőség2025-09-17
Irányár45.195 M Ft
Leírás
Pécs-Belváros peremén a Jogi és Közgazdaségtudományi Kar közvetlen közelében ÚJ ÉPÍTÉSŰ 36nm-es garzonlakás ELADÓ!
Nagy szakmai múlttal rendelkező és kiváló referencia munkáiról ismert beruházó által megvalósított háromszintes, szigetelt téglaépületben, összesen 5 lakásból és önálló garázsokból álló, hőszivattyúval felszelt társasházban, padlófűtéssel rendelkező, igényes kivitelezésű, korszerű belső elrendezéssel és felszereltséggel, valamint magas műszaki tartalommal bíró, minimális rezsivel üzemeltethető kulcsrakész új építésű lakások eladóak.
Az ingatlanok várhatóan 2026 év végén kerülnek befejezésre. Az Egyetemek és a Király utca közelében, a Lánc utcai orvosi rendelő mögött helyezkedik el, így kiváló befektetési lehetőség.
A lakáshoz teremgarázs beálló vásárolható 8.000.000 Ft-ért, illetve tároló 800.000 Ft-ért. A kert 3.321.000,- Ft.
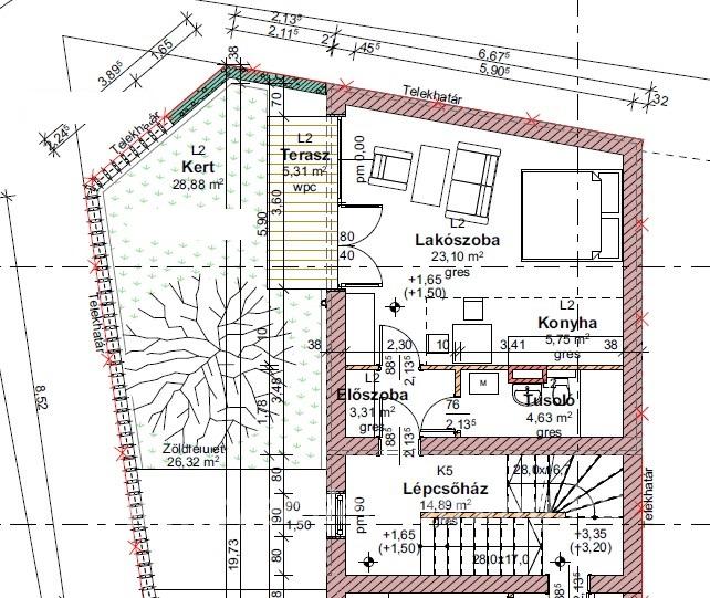
L1 - I em. 36,8 m2 + 5 m2 terasz + 28,88 m2 kert- 45,195 MFt.
L2 - II em. 36,8 m2 - 42,32 MFt.
L3 - L1 + L2 egymás fölötti lakások, összesen 73,6 + 5 m2 terasz + 28,88 m2 kert - 87,515 MFt.
Mivel az ingatlant is magába foglaló társasház a Belváros szívében, a város külföldi egyetemisták által is igen kedvelt részén található, ezért fokozottan ajánljuk mindazon kedves érdeklődőnk figyelmébe, akik Pécsett kifejezetten befektetési célból kívánnak ingatlant vásárolni, ideértve természetesen a kereskedelmi szálláshely szolgáltatásra való tökéletes alkalmasságát is. A város jelenleg legnagyobb albérlet kínálatával rendelkező és a Pécsi Tudományegyetem egyetlen szerződött ingatlanközvetítő cégeként a vásárlást követően - igény esetén - hathatósan tudjuk segíteni a vevőt az ingatlan albérlet útján történő hasznosításában is.
VisszaNagy szakmai múlttal rendelkező és kiváló referencia munkáiról ismert beruházó által megvalósított háromszintes, szigetelt téglaépületben, összesen 5 lakásból és önálló garázsokból álló, hőszivattyúval felszelt társasházban, padlófűtéssel rendelkező, igényes kivitelezésű, korszerű belső elrendezéssel és felszereltséggel, valamint magas műszaki tartalommal bíró, minimális rezsivel üzemeltethető kulcsrakész új építésű lakások eladóak.
Az ingatlanok várhatóan 2026 év végén kerülnek befejezésre. Az Egyetemek és a Király utca közelében, a Lánc utcai orvosi rendelő mögött helyezkedik el, így kiváló befektetési lehetőség.
A lakáshoz teremgarázs beálló vásárolható 8.000.000 Ft-ért, illetve tároló 800.000 Ft-ért. A kert 3.321.000,- Ft.
L1 - I em. 36,8 m2 + 5 m2 terasz + 28,88 m2 kert- 45,195 MFt.
L2 - II em. 36,8 m2 - 42,32 MFt.
L3 - L1 + L2 egymás fölötti lakások, összesen 73,6 + 5 m2 terasz + 28,88 m2 kert - 87,515 MFt.
Mivel az ingatlant is magába foglaló társasház a Belváros szívében, a város külföldi egyetemisták által is igen kedvelt részén található, ezért fokozottan ajánljuk mindazon kedves érdeklődőnk figyelmébe, akik Pécsett kifejezetten befektetési célból kívánnak ingatlant vásárolni, ideértve természetesen a kereskedelmi szálláshely szolgáltatásra való tökéletes alkalmasságát is. A város jelenleg legnagyobb albérlet kínálatával rendelkező és a Pécsi Tudományegyetem egyetlen szerződött ingatlanközvetítő cégeként a vásárlást követően - igény esetén - hathatósan tudjuk segíteni a vevőt az ingatlan albérlet útján történő hasznosításában is.
Kapcsolattartó adatai
Kapcsolatfelvétel







