Pécs, Belváros
Referencia szám: PH21643
Részletek
Ingatlan állapotaúj építésű
Berendezésbútorozatlan
Épülettípustégla
Fűtéshőszivattyú
Ingatlantípuslakás
TájolásÉszak
Kilátásudvar
Szobaszám3
Emelet1
Szintek száma3
Parkolásteremgarázs
Szigetelésigen
Épült2027
Alapterület57m2
Költözhetőség2027-12-31
Irányár76.9 M Ft
Leírás
Pécs-Belvárosától nem messze, annak egy csendes utcájában a Felsőbalokány utcában nagy szakmai múlttal rendelkező és kiváló referencia munkáiról ismert beruházó által megvalósított háromszintes, szigetelt téglaépületben, összesen 10 lakásból és a teremgarázs szinten gépkocsi beállókból álló, nagyon elegáns, hőszivattyúval felszelt társasházban, lakásonként elektromos aluredőnyökkel rendelkező, exclusive kivitelezésű, rendkívül korszerű belső elrendezéssel és felszereltséggel, valamint nagyon magas műszaki tartalommal bíró, elegáns, ún. „okos otthon” kategóriájú, minimális rezsivel üzemeltethető kulcsrakész új építésű lakások eladóak.
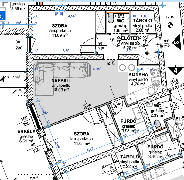
Ezen ingatlan az I. emeletén található (a tervrajzon L3 számú lakásként jelölve), összesen 58 nm alapterületű lakótérrel és 6,6 nm-es erkéllyel rendelkezik. A lakótérben előtér, kényelmes konyha-étkező-nappali, kettő háló és kádas fürdő, külön WC kerül kialakításra.
Az ingatlanok várhatóan 2027 év végén kerülnek befejezésre. A jogi kar és a Király utca közelében, a Lánc utcai orvosi rendelő mögött helyezkedik el, így kiváló befektetési lehetőség.
A lakáshoz teremgarázs vásárolható 7.000.000 Ft-ért, vagy udvari beálló 4.000.000 Ft-ért.
További lakások:
L1 58 m2 + 6,6 m2 terasz - 66,9 MFt.
L2 60 m2 + 24 m2 terasz - 84,9 MFt.
L3 58 m2 + 6,6 m2 terasz - 69,9 MFt.
L4 60 m2 + 12 m2 terasz - 74,9 MFt.
L5 57 m2 - francia erkély - 67,9 MFt.
L6 96 m2 + 10 m2 Loggia - 118,9 MFt.
L7 60 m2 - francia erkély - 69,9 MFt.
L8 58 m2 +6,6 m2 terasz - 69,9 MFt.
L9 60 m2 + 10 m2 terasz - 74,9 MFt.
Mivel az ingatlant is magába foglaló társasház a Belváros szívében, a város külföldi egyetemisták által is igen kedvelt részén található, ezért fokozottan ajánljuk mindazon kedves érdeklődőnk figyelmébe, akik Pécsett kifejezetten befektetési célból kívánnak ingatlant vásárolni, ideértve természetesen a kereskedelmi szálláshely szolgáltatásra való tökéletes alkalmasságát is. A város jelenleg legnagyobb albérlet kínálatával rendelkező és a Pécsi Tudományegyetem egyetlen szerződött ingatlanközvetítő cégeként a vásárlást követően - igény esetén - hathatósan tudjuk segíteni a vevőt az ingatlan albérlet útján történő hasznosításában is.
VisszaEzen ingatlan az I. emeletén található (a tervrajzon L3 számú lakásként jelölve), összesen 58 nm alapterületű lakótérrel és 6,6 nm-es erkéllyel rendelkezik. A lakótérben előtér, kényelmes konyha-étkező-nappali, kettő háló és kádas fürdő, külön WC kerül kialakításra.
Az ingatlanok várhatóan 2027 év végén kerülnek befejezésre. A jogi kar és a Király utca közelében, a Lánc utcai orvosi rendelő mögött helyezkedik el, így kiváló befektetési lehetőség.
A lakáshoz teremgarázs vásárolható 7.000.000 Ft-ért, vagy udvari beálló 4.000.000 Ft-ért.
További lakások:
L1 58 m2 + 6,6 m2 terasz - 66,9 MFt.
L2 60 m2 + 24 m2 terasz - 84,9 MFt.
L3 58 m2 + 6,6 m2 terasz - 69,9 MFt.
L4 60 m2 + 12 m2 terasz - 74,9 MFt.
L5 57 m2 - francia erkély - 67,9 MFt.
L6 96 m2 + 10 m2 Loggia - 118,9 MFt.
L7 60 m2 - francia erkély - 69,9 MFt.
L8 58 m2 +6,6 m2 terasz - 69,9 MFt.
L9 60 m2 + 10 m2 terasz - 74,9 MFt.
Mivel az ingatlant is magába foglaló társasház a Belváros szívében, a város külföldi egyetemisták által is igen kedvelt részén található, ezért fokozottan ajánljuk mindazon kedves érdeklődőnk figyelmébe, akik Pécsett kifejezetten befektetési célból kívánnak ingatlant vásárolni, ideértve természetesen a kereskedelmi szálláshely szolgáltatásra való tökéletes alkalmasságát is. A város jelenleg legnagyobb albérlet kínálatával rendelkező és a Pécsi Tudományegyetem egyetlen szerződött ingatlanközvetítő cégeként a vásárlást követően - igény esetén - hathatósan tudjuk segíteni a vevőt az ingatlan albérlet útján történő hasznosításában is.
Kapcsolattartó adatai
Kapcsolatfelvétel








