Orfű, Platános út
: PH22273
Property conditionnew
Furnishingsunfurnished
Building typebrick
Heatingindividual gas heating
Property typeapartment
Viewgarden
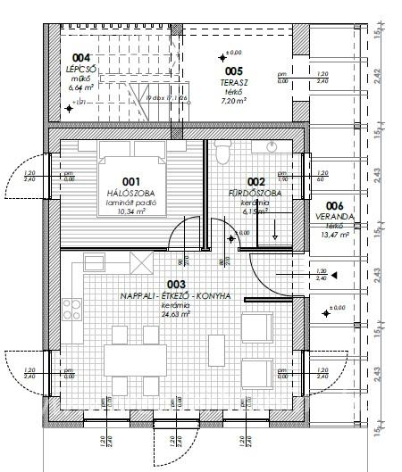
Number of rooms2
Floorground floor
Stories2
Parkingcovered parking
Insulationigen
Built2026
Floor Area41m2
Move-in date2026-03-12
Price55.214 Million HUF







